スタイリオ桜新町 フリーレント1か月 礼金0 駅徒歩6分

32.2万円

管理 / 共益費 15,000円

東京都世田谷区新町2丁目

東急田園都市線「桜新町」駅徒歩6分

東急田園都市線「駒沢大学」駅徒歩17分

東急世田谷線「世田谷」駅徒歩23分

賃料
32.2万円
敷金(保証金)
1ヶ月(-)
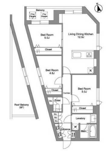
間取り
2LDK
向き
西
所在地
東京都世田谷区新町2丁目
管理 / 共益費
15,000円
礼金
0ヶ月
専有面積
57.66㎡
築年月
2026年2月(予定)
交通

東急田園都市線桜新町」駅 徒歩6分

東急田園都市線駒沢大学」駅 徒歩17分

東急世田谷線世田谷」駅 徒歩23分

物件の特徴

  • バストイレ別

  • TVモニタ付きインターホン

  • カウンターキッチン

  • 独立洗面台

  • 浴室乾燥機

  • オートロック

  • エレベーター

  • ネット使用料無料

セールスポイント

深沢小・深沢中学区♪フリーレント1礼金0♪メゾネット角部屋♪

ポイント

担当者のコメント

駒沢大学本店 川合

田園都市線の三軒茶屋、駒沢大学に2店舗で田園都市線、世田谷線の情報を毎日入荷しております!!
地域密着でやっておりますので、交渉可能の物件や、ネットに掲載できない物件も多数ございます♪是非一度この情報量をご覧になってください!地元ならではの情報をご覧下さい!!
昭和女子大学、日本大学、駒沢大学、国士舘大学、青山学院大学の学生さんの学生マンション、アパートから、転勤、社宅等法人向け不動産仲介もやっております☆お気軽にご相談ください♪
ホームメイトでいいお部屋を見つけましょう!

基本情報

保証金
-
敷引 / 償却
- / -
敷金積み増し
-
間取り / 詳細
2LDK
洋室 3.0帖/洋室 3.6帖/LDK 12.2帖
向き
西
専有面積
57.66㎡
バルコニー
(テラス)面積
-
所在階 / 階建て
3-4階 / 9階建
建物構造
鉄筋コンクリート
築年月
2026年2月(予定)
種別
賃貸マンション
保険会社 / 料金
有  16,550円  / -
保証会社 / 料金
必加入 / その他
初回保証料:賃料等の50% 月額手数料:賃料等の1%(更新料無)
現況
未完成
入居可能時期
2026年03月下旬予定

設備条件

設備条件
  • 陽当り良好 / カップル向け / ファミリー向け / フローリング / メゾネット / バルコニー / ルーフバルコニー / 都市ガス / 公営水道 / 公共下水 / エレベーター / 電気有 / 洗濯機置場有 / 敷地内ごみ置き場 / コンロ2口以上 / システムキッチン / コンロ3口 / カウンターキッチン / バス・トイレ別 / 追焚機能浴室 / 浴室乾燥機 / 温水洗浄便座 / 独立洗面台 / エアコン / シューズボックス / CS / BS / 光ファイバー / ネット使用料無料 / オートロック / TVモニタ付インターホン / 宅配ボックス / ディンプルキー / 防犯カメラ / エアコン2台 / エアコン3台 / エアコン全室 / 角部屋 / 初期費用カード決済可

その他

契約期間
定期借家 2年
賃貸区分
定期借家権
更新料
-
更新事務手数料
-
総戸数
-
特優賃
-
取引態様
仲介
物件番号
101532300
管理コード
T5-0189
情報更新日
2026年03月02日
次回更新予定日
2026年03月16日
取扱会社
  • ホームメイトFC三軒茶屋南口店 株式会社アイランドエステート
  • 東京都世田谷区三軒茶屋1丁目33-16 ニュービラ三軒茶屋1F
  • TEL:03-5779-8251
  • 東京都知事 (3) 第91017号
備考
地域密着でネットに掲載されていない物件も多数お取り扱いがあります!新生活スタート応援キャンペーン実施中★契約金のカード払いも可能です。詳しくはお電話やメールにてお気軽にお問い合わせ下さい♪田園都市線の三軒茶屋駅、駒沢大学駅に2店舗☆地域密着の不動産会社です!
当社スタッフも近隣に住んでおります☆ネットでお伝えできない賃貸情報も多数ございます♪
ネットで満足するお部屋が見つらないようでしたら、是非一度当社にご来店してお探ししてみませんか??

スタイリオ桜新町 フリーレント1か月 礼金0 駅徒歩6分の他の部屋

  1. 1階

    3LDK (85.85㎡)

    43.5万円(1.68万円/坪)

  2. 3階

    1LDK (32.66㎡)

    18.8万円(1.9万円/坪)

  3. 7階

    3LDK (68.08㎡)

    37.9万円(1.84万円/坪)

周辺施設

  • ファミリーマート 世田谷新町店の画像

    コンビニエンスストア

    ファミリーマート 世田谷新町店

    205m(3分)

  • 大丸ピーコック 桜新町店の画像

    スーパー

    大丸ピーコック 桜新町店

    430m(6分)

  • まいばすけっと 駒沢4丁目店の画像

    スーパー

    まいばすけっと 駒沢4丁目店

    470m(6分)

  • 世田谷駒沢郵便局の画像

    郵便局

    世田谷駒沢郵便局

    542m(7分)

  • 西友 駒沢大学店の画像

    スーパー

    西友 駒沢大学店

    681m(9分)

  • 駒澤大学 駒沢キャンパスの画像

    大学

    駒澤大学 駒沢キャンパス

    982m(13分)

  • エニタイムフィットネス 駒沢公園店の画像

    ジム

    エニタイムフィットネス 駒沢公園店

    1031m(13分)

  • 私立日本体育大学東京世田谷キャンパスの画像

    大学

    私立日本体育大学東京世田谷キャンパス

    1370m(18分)

  • ミラクルマーケットの画像

    ディスカウントショップ

    ミラクルマーケット

    1488m(19分)

近隣の物件

  1. コーポ秋元 室内洗濯機置き場 女性限定 学生おすすめ

    世田谷区三宿1丁目

    1K (20.20㎡)

    5.7万円

  2. テラスカーム 女性限定 エアコン システムキッチン

    世田谷区太子堂5丁目

    1R (28.00㎡)

    8.5万円

  3. SOCIETY KAKINOKIZAKA ANNEX 敷地内駐車場有 オートロック ファミリー向け

    世田谷区野沢3丁目

    2LDK (59.80㎡)

    28.6万円

  4. ハイム芳美 角部屋 TVドアホン バストイレあり

    世田谷区三軒茶屋1丁目

    1R (18.00㎡)

    5.5万円

よく見られている物件

  1. コーポエフ 駅近 角部屋 二人入居相談

    世田谷区太子堂4丁目

    1DK (29.16㎡)

    6.9万円

  2. コート駒沢 独立洗面台 角部屋 オートロック

    世田谷区弦巻2丁目

    1R (28.08㎡)

    10.3万円

  3. モンスグニール 南向き 角部屋 学生おすすめ

    世田谷区太子堂5丁目

    1K (20.72㎡)

    5.5万円

  4. サンクシェル三軒茶屋 三軒茶屋エリア オートロック 最上階

    世田谷区太子堂2丁目

    1K (23.45㎡)

    10.5万円

スタイリオ桜新町 フリーレント1か月 礼金0 駅徒歩6分

スタイリオ桜新町 フリーレント1か月 礼金0 駅徒歩6分

32.2万円

15,000円

2LDK(57.66㎡)

お気軽にお問い合わせください

LINEからお問い合わせ 無料お問い合わせ

ホームメイトFC三軒茶屋南口店 株式会社アイランドエステート

03-5779-8251

10:00~18:00

(休:火曜日・水曜日(1月~3月は不定休))