HF駒沢公園レジデンス ネット無料 オール電化 オートロック

9.8万円

管理 / 共益費 7,000円

東京都世田谷区駒沢4丁目

東急田園都市線「駒沢大学」駅徒歩13分

東急田園都市線「桜新町」駅徒歩17分

東急世田谷線「世田谷」駅徒歩26分

賃料
9.8万円
敷金(保証金)
1ヶ月(-)
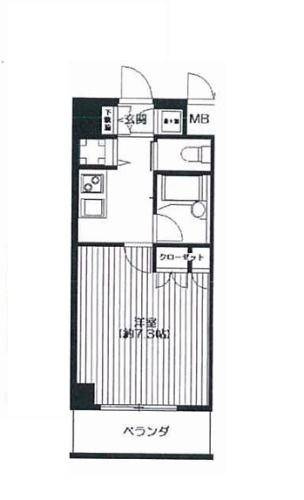
間取り
1K
向き
-
所在地
東京都世田谷区駒沢4丁目
管理 / 共益費
7,000円
礼金
1ヶ月
専有面積
25.01㎡
築年月
2006年8月(築19年)
交通

東急田園都市線駒沢大学」駅 徒歩13分

東急田園都市線桜新町」駅 徒歩17分

東急世田谷線世田谷」駅 徒歩26分

物件の特徴

  • バストイレ別

  • 室内洗濯機置場

  • TVモニタ付きインターホン

  • 浴室乾燥機

  • オートロック

  • エレベーター

  • ネット使用料無料

セールスポイント

ネット0♪オートロック付♪単身者さんオススメオール電化賃貸♪

ポイント

担当者のコメント

駒沢大学本店 山形

田園都市線の三軒茶屋、駒沢大学に2店舗で田園都市線、世田谷線の情報を毎日入荷しております!!
地域密着でやっておりますので、交渉可能の物件や、ネットに掲載できない物件も多数ございます♪是非一度この情報量をご覧になってください!地元ならではの情報をご覧下さい!!
昭和女子大学、日本大学、駒沢大学、国士舘大学、青山学院大学の学生さんの学生マンション、アパートから、転勤、社宅等法人向け不動産仲介もやっております☆お気軽にご相談ください♪
ホームメイトでいいお部屋を見つけましょう!

基本情報

保証金
-
敷引 / 償却
- / -
敷金積み増し
-
間取り / 詳細
1K
洋室 7.3帖/K
向き
-
専有面積
25.01㎡
バルコニー
(テラス)面積
-
所在階 / 階建て
1階 / 3階建
建物構造
鉄筋コンクリート
築年月
2006年8月(築19年)
種別
賃貸マンション
保険会社 / 料金
有  18,000円  / -
保証会社 / 料金
必加入 / その他
初回保証料:総賃料の40% 年間保証料:1万/年
現況
居住中
入居可能時期
2026年02月15日予定
その他条件
安心入居サポート:1万6,500円  害虫防除施工費:2万2,000円  鍵交換代:2万7,500円

設備条件

設備条件
  • 室内洗濯機置場 / フローリング / バルコニー / 公営水道 / 公共下水 / オール電化 / エレベーター / 電気有 / 駐輪場 / 敷地内ごみ置き場 / IHクッキングヒーター / コンロ2口以上 / システムキッチン / バス・トイレ別 / 浴室乾燥機 / 温水洗浄便座 / エアコン / シューズボックス / CATV / 光ファイバー / ネット使用料無料 / オートロック / TVモニタ付インターホン / 宅配ボックス / 防犯カメラ / エアコン全室 / 初期費用カード決済可

その他

契約期間
2年
賃貸区分
一般
更新料
9.8万円
更新事務手数料
-
総戸数
-
特優賃
-
取引態様
仲介
物件番号
100703369
管理コード
T2-0136-101
情報更新日
2026年03月02日
次回更新予定日
2026年03月16日
取扱会社
  • ホームメイトFC三軒茶屋南口店 株式会社アイランドエステート
  • 東京都世田谷区三軒茶屋1丁目33-16 ニュービラ三軒茶屋1F
  • TEL:03-5779-8251
  • 東京都知事 (3) 第91017号
備考
三軒茶屋・駒沢大学を中心にネットへ掲載されていない物件や、田園都市線・東横線・小田急線など複数沿線の物件をご紹介しております!オンライン内見や現地待ち合わせでのご対応も可能♪クレジット決済も承ります♪田園都市線の三軒茶屋駅、駒沢大学駅に2店舗☆地域密着の不動産会社です!
当社スタッフも近隣に住んでおります☆ネットでお伝えできない賃貸情報も多数ございます♪
ネットで満足するお部屋が見つらないようでしたら、是非一度当社にご来店してお探ししてみませんか??

HF駒沢公園レジデンス ネット無料 オール電化 オートロックの他の部屋

  1. 3階

    1K (25.07㎡)

    10.3万円(1.36万円/坪)

周辺施設

  • セブンイレブン 世田谷駒澤大学南店の画像

    コンビニエンスストア

    セブンイレブン 世田谷駒澤大学南店

    102m(2分)

  • エニタイムフィットネス 駒沢公園店の画像

    ジム

    エニタイムフィットネス 駒沢公園店

    189m(3分)

  • 駒澤大学 駒沢キャンパスの画像

    大学

    駒澤大学 駒沢キャンパス

    471m(6分)

  • 西友 駒沢大学店の画像

    スーパー

    西友 駒沢大学店

    574m(8分)

  • まいばすけっと 駒沢4丁目店の画像

    スーパー

    まいばすけっと 駒沢4丁目店

    598m(8分)

  • 世田谷駒沢郵便局の画像

    郵便局

    世田谷駒沢郵便局

    733m(10分)

  • 私立日本体育大学東京世田谷キャンパスの画像

    大学

    私立日本体育大学東京世田谷キャンパス

    1159m(15分)

  • コジマNEW用賀店の画像

    家電製品

    コジマNEW用賀店

    2043m(26分)

  • 松陰神社前の画像

    松陰神社前

    2204m(28分)

  • ディスカウントショップ、モリ三軒茶屋店の画像

    ディスカウントショップ

    ディスカウントショップ、モリ三軒茶屋店

    2259m(29分)

  • ほっともっと 世田谷区役所前店の画像

    弁当

    ほっともっと 世田谷区役所前店

    2379m(30分)

  • ミラクルマーケットの画像

    ディスカウントショップ

    ミラクルマーケット

    2422m(31分)

  • TSUTAYA 三軒茶屋店の画像

    レンタルビデオ

    TSUTAYA 三軒茶屋店

    2643m(34分)

近隣の物件

  1. コーポ秋元 室内洗濯機置き場 女性限定 学生おすすめ

    世田谷区三宿1丁目

    1K (20.20㎡)

    5.7万円

  2. テラスカーム 女性限定 エアコン システムキッチン

    世田谷区太子堂5丁目

    1R (28.00㎡)

    8.5万円

  3. SOCIETY KAKINOKIZAKA ANNEX 敷地内駐車場有 オートロック ファミリー向け

    世田谷区野沢3丁目

    2LDK (59.80㎡)

    28.6万円

  4. ハイム芳美 角部屋 TVドアホン バストイレあり

    世田谷区三軒茶屋1丁目

    1R (18.00㎡)

    5.5万円

よく見られている物件

  1. コーポエフ 駅近 角部屋 二人入居相談

    世田谷区太子堂4丁目

    1DK (29.16㎡)

    6.9万円

  2. コート駒沢 独立洗面台 角部屋 オートロック

    世田谷区弦巻2丁目

    1R (28.08㎡)

    10.3万円

  3. モンスグニール 南向き 角部屋 学生おすすめ

    世田谷区太子堂5丁目

    1K (20.72㎡)

    5.5万円

  4. サンクシェル三軒茶屋 三軒茶屋エリア オートロック 最上階

    世田谷区太子堂2丁目

    1K (23.45㎡)

    10.5万円

HF駒沢公園レジデンス ネット無料 オール電化 オートロック

HF駒沢公園レジデンス ネット無料 オール電化 オートロック

9.8万円

7,000円

1K(25.01㎡)

お気軽にお問い合わせください

LINEからお問い合わせ 無料お問い合わせ

ホームメイトFC三軒茶屋南口店 株式会社アイランドエステート

03-5779-8251

10:00~18:00

(休:火曜日・水曜日(1月~3月は不定休))