NEW

HF駒沢公園レジデンス ネット無料 オール電化 オートロック

10.3万円

管理 / 共益費 7,000円

東京都世田谷区駒沢4丁目

東急田園都市線「駒沢大学」駅徒歩13分

東急田園都市線「桜新町」駅徒歩17分

東急世田谷線「世田谷」駅徒歩26分

賃料
10.3万円
敷金(保証金)
1ヶ月(-)
間取り
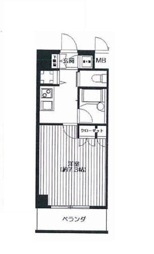
1K
向き
-
所在地
東京都世田谷区駒沢4丁目
管理 / 共益費
7,000円
礼金
1ヶ月
専有面積
25.07㎡
築年月
2006年8月(築19年)
交通

東急田園都市線駒沢大学」駅 徒歩13分

東急田園都市線桜新町」駅 徒歩17分

東急世田谷線世田谷」駅 徒歩26分

物件の特徴

  • バストイレ別

  • 室内洗濯機置場

  • TVモニタ付きインターホン

  • 浴室乾燥機

  • オートロック

  • エレベーター

  • ネット使用料無料

セールスポイント

ネット0♪オートロック付♪単身者さんオススメオール電化賃貸♪

ポイント

担当者のコメント

駒沢大学本店 井上

田園都市線の三軒茶屋、駒沢大学に2店舗で田園都市線、世田谷線の情報を毎日入荷しております!!
地域密着でやっておりますので、交渉可能の物件や、ネットに掲載できない物件も多数ございます♪是非一度この情報量をご覧になってください!地元ならではの情報をご覧下さい!!
昭和女子大学、日本大学、駒沢大学、国士舘大学、青山学院大学の学生さんの学生マンション、アパートから、転勤、社宅等法人向け不動産仲介もやっております☆お気軽にご相談ください♪
ホームメイトでいいお部屋を見つけましょう!

基本情報

保証金
-
敷引 / 償却
- / -
敷金積み増し
-
間取り / 詳細
1K
洋室 7.3帖/K
向き
-
専有面積
25.07㎡
バルコニー
(テラス)面積
-
所在階 / 階建て
3階 / 3階建
建物構造
鉄筋コンクリート
築年月
2006年8月(築19年)
種別
賃貸マンション
保険会社 / 料金
有  18,000円  / -
保証会社 / 料金
必加入 / その他
初回保証料:総賃料の40% 年間保証料:1万/年
現況
空家
入居可能時期
即時
その他条件
安心入居サポート:1万6,500円  害虫防除施工費:2万2,000円  鍵交換代:2万7,500円

設備条件

設備条件
  • 室内洗濯機置場 / フローリング / バルコニー / 公営水道 / 公共下水 / オール電化 / エレベーター / 電気有 / 駐輪場 / 敷地内ごみ置き場 / IHクッキングヒーター / コンロ2口以上 / システムキッチン / バス・トイレ別 / 浴室乾燥機 / 温水洗浄便座 / エアコン / シューズボックス / 光ファイバー / ネット使用料無料 / オートロック / TVモニタ付インターホン / 宅配ボックス / 防犯カメラ / エアコン全室 / 初期費用カード決済可

その他

契約期間
2年
賃貸区分
一般
更新料
10.3万円
更新事務手数料
-
総戸数
-
特優賃
-
取引態様
仲介
物件番号
100468793
管理コード
T2-0136-308
情報更新日
2026年04月13日
次回更新予定日
2026年04月27日
取扱会社
  • ホームメイトFC三軒茶屋南口店 株式会社アイランドエステート
  • 東京都世田谷区三軒茶屋1丁目33-16 ニュービラ三軒茶屋1F
  • TEL:03-5779-8251
  • 東京都知事 (3) 第91017号
備考
三軒茶屋・駒沢大学を中心にネットへ掲載されていない物件や、田園都市線・東横線・小田急線など複数沿線の物件をご紹介しております!オンライン内見や現地待ち合わせでのご対応も可能♪クレジット決済も承ります♪田園都市線の三軒茶屋駅、駒沢大学駅に2店舗☆地域密着の不動産会社です!
当社スタッフも近隣に住んでおります☆ネットでお伝えできない賃貸情報も多数ございます♪
ネットで満足するお部屋が見つらないようでしたら、是非一度当社にご来店してお探ししてみませんか??

HF駒沢公園レジデンス ネット無料 オール電化 オートロックの他の部屋

  1. 1階

    1K (25.01㎡)

    9.8万円(1.3万円/坪)

周辺施設

  • セブンイレブン 世田谷駒澤大学南店の画像

    コンビニエンスストア

    セブンイレブン 世田谷駒澤大学南店

    102m(2分)

  • トモズ 駒沢店の画像

    ドラッグストア

    トモズ 駒沢店

    112m(2分)

  • エニタイムフィットネス 駒沢公園店の画像

    ジム

    エニタイムフィットネス 駒沢公園店

    189m(3分)

  • 西友 駒沢大学店の画像

    スーパー

    西友 駒沢大学店

    574m(8分)

  • まいばすけっと 駒沢4丁目店の画像

    スーパー

    まいばすけっと 駒沢4丁目店

    598m(8分)

  • 世田谷駒沢郵便局の画像

    郵便局

    世田谷駒沢郵便局

    733m(10分)

  • 私立日本体育大学東京世田谷キャンパスの画像

    大学

    私立日本体育大学東京世田谷キャンパス

    1159m(15分)

  • コジマNEW用賀店の画像

    家電製品

    コジマNEW用賀店

    2043m(26分)

  • ミラクルマーケットの画像

    ディスカウントショップ

    ミラクルマーケット

    2422m(31分)

近隣の物件

  1. MINIMUM 内装リフォーム中 角部屋 南向き

    世田谷区池尻2丁目

    1R (16.66㎡)

    8万円

  2. コーポ秋元 室内洗濯機置き場 女性限定 学生おすすめ

    世田谷区三宿1丁目

    1K (20.20㎡)

    5.7万円

  3. SOCIETY KAKINOKIZAKA ANNEX 敷地内駐車場有 オートロック ファミリー向け

    世田谷区野沢3丁目

    2LDK (59.80㎡)

    28.6万円

  4. パインヒルガーデン 防音室付き 楽器相談可 オートロック

    世田谷区桜3丁目

    2LDK (87.00㎡)

    30万円

よく見られている物件

  1. コート駒沢 独立洗面台 角部屋 オートロック

    世田谷区弦巻2丁目

    1R (28.08㎡)

    10.3万円

  2. クレストハウス 三軒茶屋エリア ロフト 緑道沿い

    世田谷区太子堂3丁目

    1K (25.05㎡)

    11万円

  3. 10FLATS 駅近 ペット相談 角部屋

    世田谷区新町3丁目

    1R (19.00㎡)

    5.4万円

  4. 山川紅葉館 ペット相談 角部屋 独立洗面台

    世田谷区野沢1丁目

    1DK (30.00㎡)

    9.4万円

HF駒沢公園レジデンス ネット無料 オール電化 オートロック

HF駒沢公園レジデンス ネット無料 オール電化 オートロック

10.3万円

7,000円

1K(25.07㎡)

お気軽にお問い合わせください

LINEからお問い合わせ 無料お問い合わせ

ホームメイトFC三軒茶屋南口店 株式会社アイランドエステート

03-5779-8251

10:00~18:00

(休:火曜日・水曜日(1月~3月は不定休))